Модульное мобильное очистное сооружение Alta Air Master 10 mobile + УФ в Новороссийске
Мобильные очистные сооружения Alta Air Master 10 mobile поставляются полностью укомплектованными и готовыми к установке модулями.
Описание
Мобильные очистные сооружения Alta Air Master 10 mobile
Мобильные очистные сооружения Alta Air Master 10 mobile поставляются полностью укомплектованными и готовыми к установке модулями. Вместе с мобильными очистными сооружениями дополнительно могут быть поставлены мобильные модули с различным хозяйственно-бытовым оборудованием, таким как туалеты, душевые кабинки, рукомойники.
Сочетание биологической и химической очистки позволяет получать гарантированные результаты по большому количеству параметров.
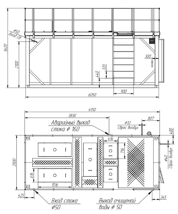
Габариты и размеры

Конструкция Alta Air Master 10 mobile, разработанная компанией Alta Group, рассчитана на неравномерное поступление сточных вод в течение суток с двукратным коэффициентом среднесуточной неравномерности.
Обслуживание мобильных очистных сооружений не соизмеримо дешевле обслуживания биотуалетов. Мобильные очистные сооружения при постоянном использовании на максимальной производительности возможно очищать один раза в год. Стоимость оборудования окупается для заказчика на экономии в обслуживании в усредненных условиях за три месяца. Очищенную на мобильных очистных сооружениях воду при определенных условиях можно использовать в технических целях на стройке.
Мобильные очистные сооружения Alta Air Master 10 mobile нашли свое широкое применение, как временное очистное сооружение с гарантированной очисткой стока до показателей, разрешенных к сбросу очищенной воды на грунт в ливневые и дренажные системы, а при обеспечении дополнительного УФ обеззараживания воды в водоем.
Все мобильные очистные сооружения Alta Air Master 10 mobile интегрированы в прочный утепленный (см. узел А) блок-контейнер, что позволяет их разместить на поверхности земли, полностью исключить земляные работы, существенно удешевив и упростив монтаж оборудования.
Конструкция данного оборудования обеспечивает полную мобильность очистных сооружений, возможность быстрого развертывания и свертывания мобильных очистных сооружений. Транспортировка Alta Air Master 6 mobile или Alta Air Master 10 mobile в свернутом состоянии осуществляется в полной заводской готовности, готовые к работе, т.е. при установке оборудования на объекте нет необходимости в присутствии специалистов производителя либо специализированных организаций.
Точки присоединения инженерных и электрических сетей организованы таким образом, чтобы обеспечить максимальный комфорт и эргономичность при подключении и эксплуатации, а так же простоту демонтажа для перевозки оборудования.
Применение оборудования по очистки стока в условиях строительных площадок и строительных городков, обеспечивает ряд значительных преимуществ перед применением традиционных биотуалетов. Использование очистных сооружений в значительной степени повышает экологичность, гигиеничность и культуру использования хозяйственно-бытовыми узлами.
При отсутствии данных об обязательной, либо необходимой производительности очистных сооружений для объекта расчет производится исходя из количества пользователей и характера водопотребления абонентами. Например водопотребление одного человека при постоянном комфортном проживании в среднем составляет от 150л. до 250л. в сутки.
При расчете производительности очистных сооружений по водопользованию на различных категориях объектов рекомендуется руководствоваться СНиП 2.04.01-85.
- общежития от 85 до 140л на человека в сутки;
- гостиницы, пансионаты, мотели, санатории и дома отдыха: 120 - 300л на человека в сутки;
- детские сады, ясли, пионерские лагеря: 20 - 130л на человека в сутки;
- административные здания и учебные заведения: 10 - 70л на человека в сутки.
Описание работы мобильных очистных сооружений
Декларация соответствия, экспертное заключение
Декларация соответствия Мобильные очистные сооружения
Экспертное заключение Мобильные очистные сооружения
Характеристики
|
Транспортные габариты (Длина х Ширина х Высота), мм
|
6050х2400х2580 |
|
|
10 |
|
Транспортировочный вес, кг
|
3000 |
|
Среднечасовое поступление стока, м³/ч
|
0,42 |
|
Габариты (Длина х Ширина х Высота), мм
|
6150х2500х3620 |
|
Максимальный рабочий вес, тонн
|
18 |
|
Проекты
|
Хозяйственно-бытовой сток - 10 м3 в сутки, жилой комплекс, Смоленская обл., Хозяйственно-бытовой и ливневой сток - 30 м3/сутки, 1 л/с, мобильные очистные сооружения |






